Die Studios
BAUAUSFÜHRUNG:
Wir, Wolfram und Till Maier, Metallbaumeister und Kerstin Wichmann, Metallbauerin und Diplom-Designerin, haben beim Um- und Ausbau großen Wert auf klassisches Bauhandwerk gelegt. So sind alle Studiotrennwände massiv gemauert und verputzt. Das Tragwerk der eingebrachten Zwischendecken und Trennwände kombiniert Stahlbau, Holz und Beton. Alle Balkone, Treppen, Laubengänge und die neu erstellte Stahl-Glas-Fassade haben wir in unserer Metallbauwerkstatt im Erdgeschoss angefertigt. Die Fassade ist eine geschweißte Stahlrohrkonstruktion mit aufgesetztem Raico-Therm+- System für voll wärmegedämmte Fassaden mit 3-fach Isolierverglasung. Die Stahloberflächen sind „natur“-belassen geölt.
Alle Betonstützen und Außenwände sind mineralisch gedämmt, im 1.OG teilweise zusätzlich mit atmungsaktiver Innendämmung.
Ost-, Süd-, und Westfassaden sind mit vollflächigen Sonnenschutz Raffstores ausgestattet.
Bestehende Betonoberflächen haben wir, so weit wie möglich, sichtbar erhalten, hauptsächlich die Wabendecke im 2. OG und den Kohlenschacht in den Weststudios.
AUSSTATTUNG:
Die jeweils größte Fläche aller Studios bietet mit wandfüllenden, bodentiefen Verglasungen, großformatigen Türelementen und anschließendem Balkon an der Südseite freien Blick über die Gleise. Jedes Studio hat einen zweiten kleineren Arbeitsraum an seiner Zugangsseite über die Buchberger Straße. Jeweils eingestellte Duschbäder und WCs sind überbaut mit einer Hoch- , bzw. Galerieebene. Anschlüsse für eine Küchenzeile sind eingerichtet. Beheizbar sind alle Räume über Fußbodenheizung. Der Fußbodenbelag ist geöltes Eichenparkett.
Zutritt erfolgt abhängig von der Studiolage über das interne Treppenhaus oder die äußeren Laubengänge. Ein Fahrstuhl ist nicht vorhanden.
WICHTIG ZU WISSEN:
- Die Heizhaus-Studios liegen in einem ausgewiesenen Berliner Gewerbegebiet. Deshalb muss die gemietete Gewerbeeinheit allein dem Unternehmenszweck dienen und darf keinesfalls zu Wohnzwecken genutzt werden.
- Die bestehenden Zugangswege der Räume eignen sich nicht für ständigen Publikumsverkehr.
- Neben den Gewerke-üblichen Geräuschen unserer Schlosserwerkstatt, ist mit regelmäßigem Rangierverkehr auf den angrenzenden Gleisanlagen zu rechnen.
ANGABEN ZUM ENERGIEAUSWEIS:
Pflichtangaben gemäß EnEV 2014: Baujahr 1960-62. Ein Energieverbrauchsausweis ist beantragt und liegt demnächst vor. Der wesentliche Energieträger für die Heizung des Gebäudes ist Erdgas mit einer Brennwert- Zentralheizung.
Erkunden Sie Lage und Umgebung der Heizhaus-Studios in Berlin auf Google Maps
VERKEHRSANBINDUNG:
ÖPNV
850 m Fußweg zum S-Bahnhof Nöldnerplatz: S5/ S7
1000 m Fußweg zum U-Bahnhof Magdalenenstraße: U5
1800 m Fußweg zum Ostkreuz: Fernverkehr, Regionalbahn, S3/ S5/ S7/ S 75/ S 41/ S 42/ S 8/ S85
PKW
Parkplätze finden Sie im umgebenden öffentlichen Straßenland, begrenzte Anzahl auf dem Grundstück
SPANNENDE UND HILFREICHE ORTE IN DER NÄHE:
Kaskelkiez > 1,2 km
Kiezcafé Nadia und Costa > 750 m
B.L.O. Ateliers – Lokkunst e.V. > 800 m
Weitlingkiez > 2,1 km
Rummelsburger See, Paul und Paula-Ufer > 2,5 km
Ring Center, Frankfurter Allee > 1,7 km
Max-Taut-Aula > 1,1 km
Tankstelle > 90 m
Handwerkermarkt > 230 m
Supermarkt > 280 m
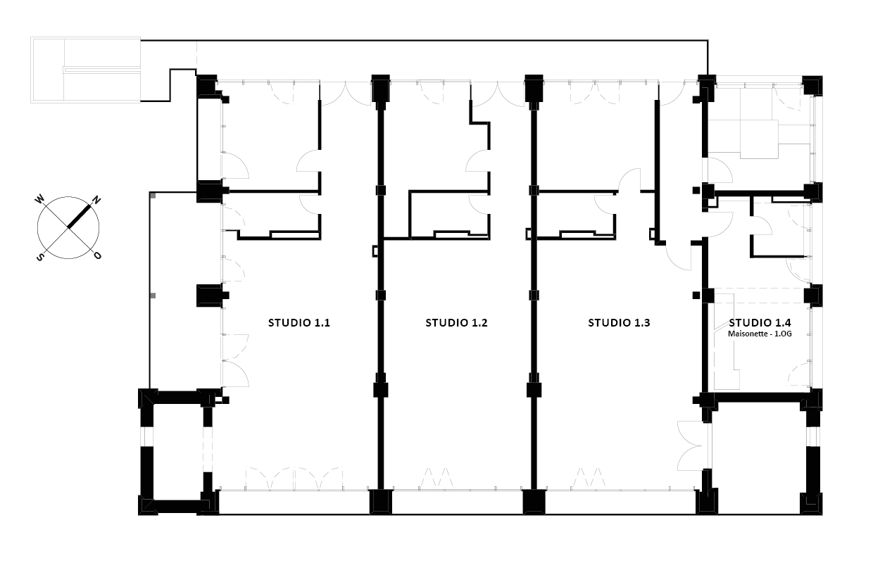
Studio 1.1
Studio 1.1 mit 3-Seitenverglasung mit überdachten Balkonflächen
Das Studio liegt im 1. OG mit bodentiefen Verglasungen zur Süd und Westseite. Es verfügt an drei Außenseiten über Balkonflächen von über 30 m2, größtenteils überdacht und eine lichtdurchflutete Arbeitsfläche von 75 m2.
Ein zweiter Arbeitsbereich liegt im behutsam restaurierten Kohlenschacht für die Heizkessel der ehemaligen Heizhaus-Anlage.
Studio 1.2
Studio 1.2 mit vollverglaster Südfassade
Im 1. Obergeschoss des ehemaligen Lichtenberger Heizhauses gelegen, mit vollflächig verglaster Südseite. Hinter der Verglasung, erreichbar über 3 x 2,7 m große Faltschiebe-Elemente liegt der zugehörige Balkon. Bei einer Deckenhöhe von 4,25 m und dem weiten Stadthorizont hat der Raum etwas beeindruckend Erhabenes und lässt Ideen fliegen.
Studio 1.3
Studio 1.3 mit großer Loggia in Südrichtung
An der Ostseite im 1. Obergeschoss des Heizhauses mit bodentiefen Verglasungen in Süd- und Ostrichtung, wird die unglaubliche Weitsicht noch durch die große überdachte Loggia bereichert. Auf einer Gesamtfläche von 112 m2 hat man hier einen grenzenlosen Raumeindruck.
Studio 1.4
Studio 1.4 Ost Maisonette
Weitblick über die Lichtenberger Brücke vom Ostbalkon, zwei Etagen, eine große überdachte Loggia mit Südausrichtung, Dazu eine Deckenhöhe von 5,70 m im Obergeschoss - das fühlt sich fast ein bisschen raumschiffartig an.
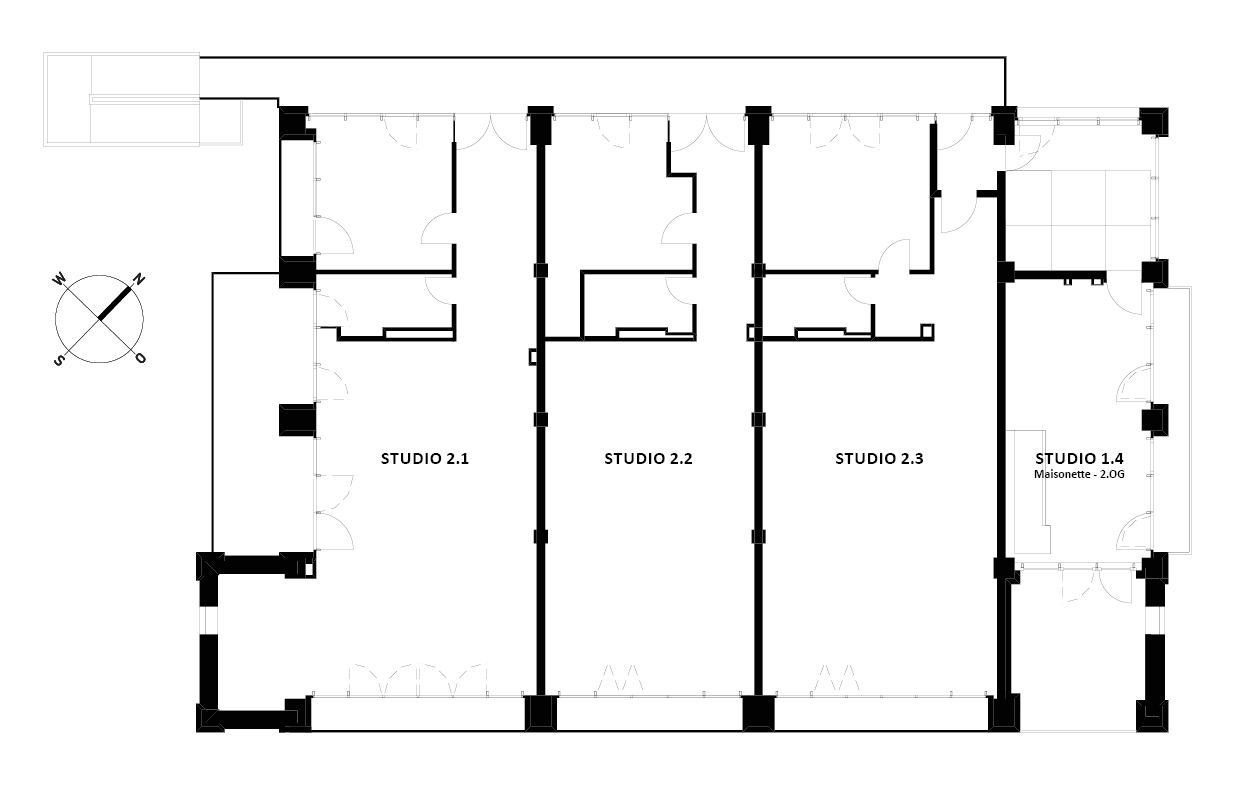
Studio 2.1
Studio 2.1 mit dreiseitiger Verglasung und sehr großzügigem West-Balkon
Im 2. Obergeschoss mit bodentiefen Verglasungen zur Süd- und Westseite. Die große Hauptarbeitsfläche von 75 m2, die Original-Betonwabendecke in 5 m Höhe, große Balkontüren und sehr großzügige Balkone. Dazu noch ein weiterer Arbeitsraum im sanierten Kohlenschacht. Das alte Heizhaus ist wirklich sehr glücklich über seine Sanierung.
Studio 2.2
Studio 2.2 mit vollverglaster Südseite
Ein Schienenmeer und ein beeindruckend großer Himmel über Berlin. Auch die Betonwabendecke, das Original der alten Heizkesselhalle, in 5,5 m Höhe, schränkt den Blick nicht ein. Die größte Fläche dieses Studios von 60 m2 im 2. OG endet gefühlt eigentlich gar nicht, weil die verglaste Südwand und der anschließende Balkon nur Weite vermitteln.
Studio 2.3
Studio 2.3 mit vollverglaster Südseite
Ein Ausblick zum Staunen, ohne Hindernis. Die ganze Südflanke des Arbeitsraums ist verglast. Über große Glas-Faltschiebeelemente von 4 m x 2,7 m geht es weiter auf den direkt anschließenden Südbalkon. Insgesamt 118 m2 Fläche bei einer Deckenhöhe von 5,3 m in Original Heizhaus-Optik – da ist der Raum beinahe selbst schon kreativ.

